Reforma en N7
jun. de 2022
---
Arquitecto: Iñigo Arias
Localización: Getxo (Bizkaia)
Promotor: Privado
Superficie: 55,66m²
Estado: No construido
---
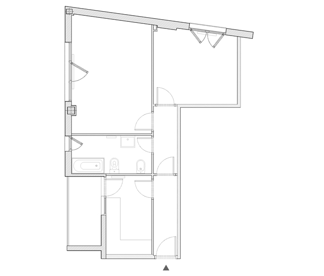
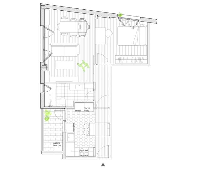
Se propone una intervención que busca optimizar el espacio existente concentrando la compatibilidad de usos programáticos. Para ello, se condensa el pasillo de acceso a la vivienda y la cocina en un único espacio que hace las veces de recibidor, cocina, comedor de diario (isla) y distribuidor.

De la misma manera, la superficie destinada a albergar el baño se percibía como excesiva; por ello se plantea un leve movimiento en la tabiquería existente que nos permite aumentar la superficie útil de la cocina y proporcionar la del baño.

También se opta por eliminar la puerta y el tabique de acceso al salón-comedor, en su lugar se sitúa una puerta corredera de madera con carril visto que ofrece un aire nuevo al espacio y permite ahondar en el hilo conductor de la reforma propuesta.

En lo que a la gama cromática seleccionada se refiere, la vivienda resultante se encuentra ejecutada en tonos neutros que amplían e iluminan el espacio; se aporta la nota de color en la puerta divisoria sin marcos existente entre la cocina y el pasillo.
iñigo arias arquitecto, arquitecto getxo, arquitecto bilbao, iñigo arias, architect getxo, architect bilbao, iaadstudio, fachada ventilada, SATE, eco, passive