Reforma en casa H26
ago. de 2021
---
Arquitecto: Iñigo Arias
Localización: Bilbao (Bizkaia)
Promotor: Privado
Constructora: Construcciones Bizkargi XXI, S.L.
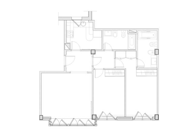
Superficie: 76,38m²
---
Se realiza una intervención de "acupuntura arquitectónica" donde los elementos sobre los que se debe actuar se encuentran perfectamente identificados.

La compleja tarea de reorganizar una cocina donde el tortuoso espacio existente impide la ejecución de un elemento de líneas simples, se resuelve mediante un juego de llenos y vacios que nos permite cumplir con las necesidades previstas sin saturar el espacio disponible.

La disposición del mobiliario utilizado, así como la elección de los nuevos materiales (pintura, iluminación…) que componen la visual de la vivienda, permiten dotar al espacio del añorado aire vanguardista esperado.
iñigo arias arquitecto, arquitecto getxo, arquitecto bilbao, iñigo arias, architect getxo, architect bilbao, iaadstudio, fachada ventilada, SATE, eco, passive