Apartamentos y gastrobar en E05
jul. de 2021
---
Arquitecto: Iñigo Arias
Localización: Plentzia (Bizkaia)
Promotor: Privado
Superficie: 496,68m²
Estado: No construido
---
El presente proyecto se define como la creación de un nuevo concepto en el sector de la hostelería; un concepto vanguardista y dinámico en el que se aúna el buen hacer de la cocina vasca en formato Pintxo y una zona destinada a albergar alojamientos de calidad que permitan que sus huéspedes no se rijan por los convencionalismos hoteleros existentes.

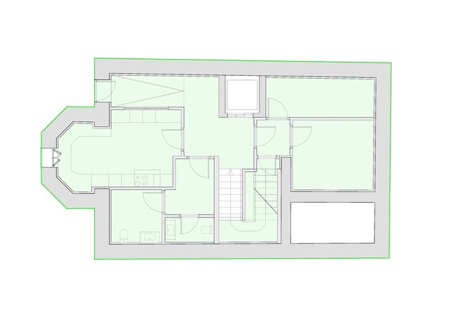
La nueva distribución propuesta para el edificio otrora vivienda unifamiliar, se contrapone frontalmente al nuevo formato propuesto en el que el conjunto se ve interiormente disgregado mediante la creación de cuatro apartamentos y un gastrobar.

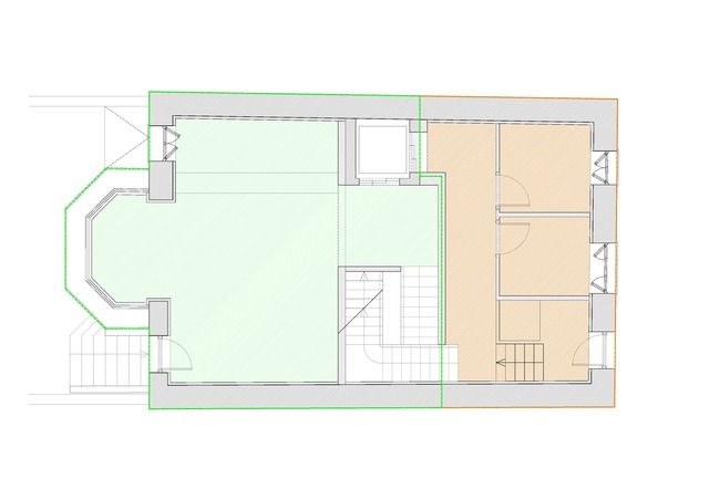
En lo que al gastrobar se refiere: nos encontramos con un espacio de trabajo situado en la planta semisótano del edificio que fluye con los espacios a los que presta servicio (jardín y comedor en planta baja).

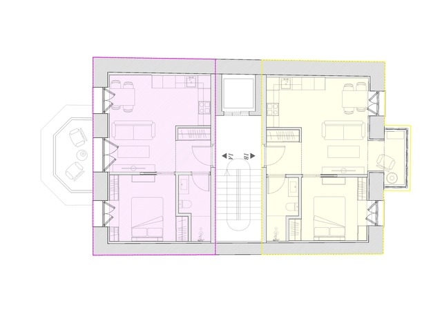
En lo que a los apartamentos se refiere: se confecciona una distribución de dos apartamentos por planta, lo que nos permite resolver todas las exigencias del sector de la hostelería y del residencial.

Todo el conjunto queda conectado por un núcleo de comunicaciones (ascensor y escalera interior) que aprovecha el espacio existente de un antiguo patio.
iñigo arias arquitecto, arquitecto getxo, arquitecto bilbao, iñigo arias, architect getxo, architect bilbao, iaadstudio, fachada ventilada, SATE, eco, passive