Reforma en casa B16
mar. de 2021
---
Arquitecto: Iñigo Arias
Localización: Getxo (Bizkaia)
Promotor: Privado
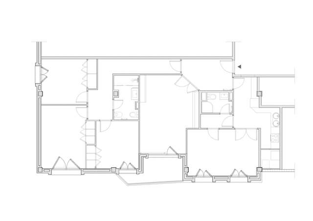
Superficie: 121,03m²
Estado: No construido
---
Se propone una intervención global donde la disposición de los espacios existentes se ve puntualmente modificada, optando por retomar porciones de la distribución primigenia; tratando de crear nuevos espacios que complementan a los actuales y permitiendo a sus Propietarios desarrollar las distintas actividades que de otra forma carecerían de respuesta espacial.

La actuación se focaliza en la ordenación de un espacio dinámico para el recibidor, salón, comedor, cocina, baño de invitados, lavadero y tendedero; además de en la actualización del resto de la vivienda.
iñigo arias arquitecto, arquitecto getxo, arquitecto bilbao, iñigo arias, architect getxo, architect bilbao, iaadstudio, fachada ventilada, SATE, eco, passive