Segregación en T16D
ene. de 2021
---
Arquitecto: Iñigo Arias
Localización: Galdakao (Bizkaia)
Promotor: Privado
Superficie: 237,75m²
Estado: No construido
---
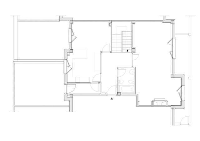
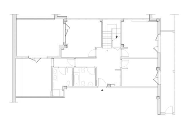
Conocedores de los continuos cambios de necesidades que sufren la forma de vida de las personas y en su previsión, se recibe por parte de la Propiedad el encargo de redacción de un proyecto de segregación de su actual vivienda (dúplex), cuyo fin principal es la reutilización, reconversión y puesta en valor de los espacios que previsiblemente serán baldíos en un futuro cercano.

Para ello se establecen una serie de reglas - criterios de necesario cumplimiento, tales como minimización de la intervención a ejecutar y la búsqueda de equilibro programático entre viviendas resultantes.
iñigo arias arquitecto, arquitecto getxo, arquitecto bilbao, iñigo arias, architect getxo, architect bilbao, iaadstudio, fachada ventilada, SATE, eco, passive