Segregación en T16C
ene. de 2021
---
Arquitecto: Iñigo Arias
Localización: Galdakao (Bizkaia)
Promotor: Privado
Superficie: 219,98m²
Estado: No construido
---
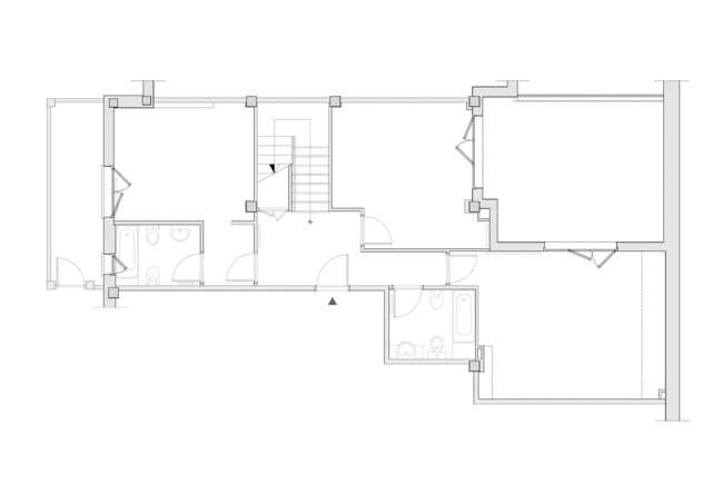
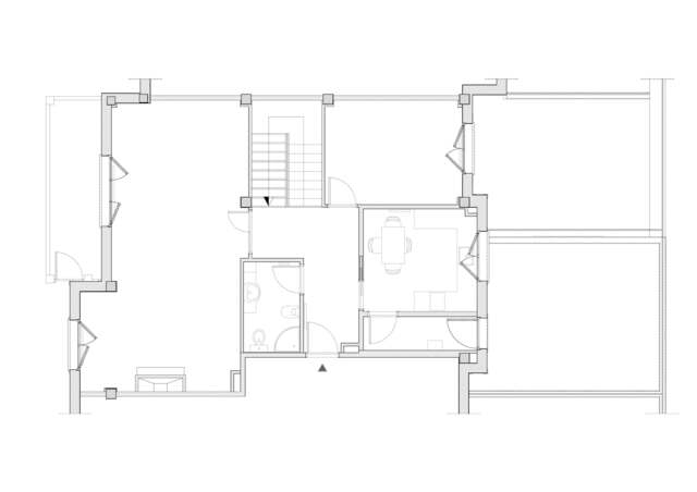
Como consecuencia de los continuos cambios que sufren la forma de vida de las personas, se recibe por parte de la Propiedad el encargo de redacción de un proyecto de segregación de su actual vivienda (dúplex), cuyo fin principal es la reutilización, reconversión y puesta en valor de los espacios baldíos existentes.

Para ello se establecen una serie de reglas - criterios de necesario cumplimiento, tales como la minimización de los espacios de circulación y la búsqueda de equilibro programático entre viviendas resultantes.
iñigo arias arquitecto, arquitecto getxo, arquitecto bilbao, iñigo arias, architect getxo, architect bilbao, iaadstudio, fachada ventilada, SATE, eco, passive