Reforma en casa E03
ago. de 2020
---
Arquitecto: Iñigo Arias
Localización: Getxo (Bizkaia)
Promotor: Privado
Constructora: Construcciones Bizkargi XXI, S.L.
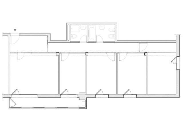
Superficie: 105,35m²
---
Se propone una intervención global en la que la disposición de los espacios existentes se ve puntualmente modificada. La actuación se focaliza en la creación de un único espacio común para el recibidor-salón-comedor-cocina, además de en la actualización del resto de la vivienda. Este nuevo gran espacio nos permite reducir e integrar las zonas anteriormente destinadas a circulación, mediante la inclusión de nuevos elementos articuladores.

En lo que a la gama cromática seleccionada se refiere, la vivienda resultante se encuentra ejecutada en tonos neutros que amplían e iluminan el espacio; se aporta la nota de color en la puerta/paño que separa el espacio público del privado.
iñigo arias arquitecto, arquitecto getxo, arquitecto bilbao, iñigo arias, architect getxo, architect bilbao, iaadstudio, fachada ventilada, SATE, eco, passive