Reforma en casa PC
oct. de 2018
---
Arquitecto: Iñigo Arias
Localización: Getxo (Bizkaia)
Promotor: Privado
Superficie: 77,25m²
Estado: No construido
---
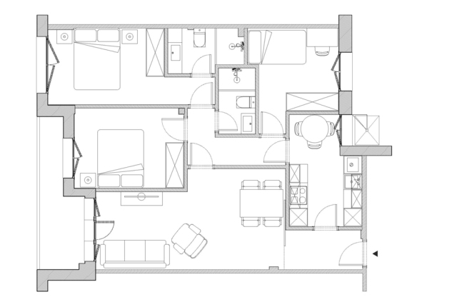
Se propone una intervención en la que la premisa inicial de la propiedad nos obliga a realizar una actuación que engloba todos y cada uno de los elementos que componen la vivienda. La misma se reduce a un único concepto básico: la optimización y eficiencia de los espacios existentes, así como la creación de otros nuevos.

La nueva distribución propuesta nos permite articular un nuevo formato de vivienda en la que los espacios de circulación se ven reducidos.
iñigo arias arquitecto, arquitecto getxo, arquitecto bilbao, iñigo arias, architect getxo, architect bilbao, iaadstudio, fachada ventilada, SATE, eco, passive