Reforma en casa OA
sep. de 2017
---
Arquitecto: Iñigo Arias
Localización: Bilbao (Bizkaia)
Promotor: Privado
Superficie: 68,00m²
Estado: No construido
---
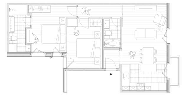
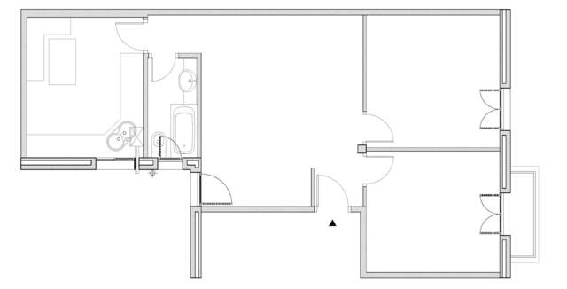
Se propone una intervención integral en la que todos y cada uno de los elementos programáticos cambian de lugar.

La nueva distribución propuesta diferencia la zona pública y privada, permitiendo generar una circulación eficiente en la que la pérdida de espacio se ve mermada.

La inclusión de un nuevo baño y un lavadero proporcionan comodidad y confort para los usuarios.
iñigo arias arquitecto, arquitecto getxo, arquitecto bilbao, iñigo arias, architect getxo, architect bilbao, iaadstudio, fachada ventilada, SATE, eco, passive