Reforma en casa LdM
jun. de 2017
---
Arquitecto: Iñigo Arias
Localización: Leioa (Bizkaia)
Promotor: Privado
Constructora: Construcciones Bizkargi XXI, S.L.
Superficie: 17,98m²
---
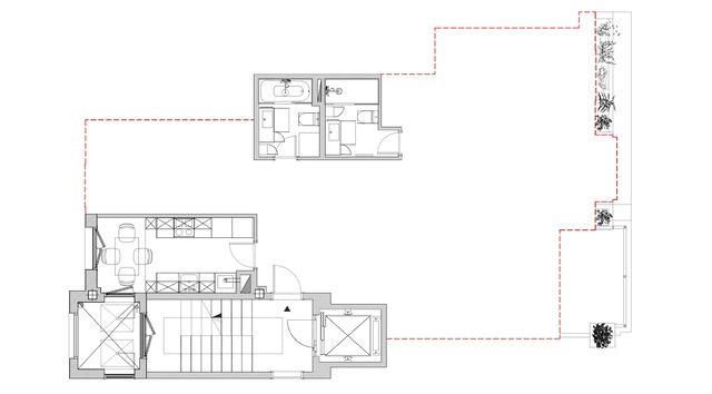
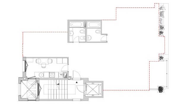
Se realiza una intervención de "acupuntura arquitectónica" donde los elementos a reformar se encuentran perfectamente identificados. El proceso de diseño de espacios restringidos queda directamente ligado al afán por el cuidado del más mínimo detalle.
iñigo arias arquitecto, arquitecto getxo, arquitecto bilbao, iñigo arias, architect getxo, architect bilbao, iaadstudio, fachada ventilada, SATE, eco, passive