Elevador en Leioa
sep. de 2016
---
Arquitecto: Iñigo Arias
Arq. Técnico: Felipe Arias
Visualización: Nacho Lajo
Localización: Leioa (Bizkaia)
Promotor: Privado
Superficie: 48,00m²
Estado: No construido
---
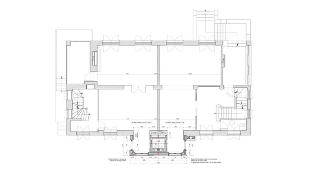
El presente proyecto se define como la inclusión de un elevador de doble embarque exterior adosado a la fachada.

El nuevo cuerpo propuesto que albergará el elevador no apoyará sobre la edificación existente; los puntos de contacto entre ambos cuerpos se reducirán a aquellos espacios en los que deba existir continuidad entre sus pavimentos facilitando así el acceso a los distintos niveles del edificio. De esta forma se respeta en la medida de lo posible la originalidad de la edificación sobre la que se actúa. En contraposición a dicha originalidad se opta por otorgar al nuevo volumen una identidad propia. Para ello se selecciona el acero corten como material de ejecución principal capaz de ganar nuevos matices estéticos y variar su aspecto con el paso del tiempo.
iñigo arias arquitecto, arquitecto getxo, arquitecto bilbao, iñigo arias, architect getxo, architect bilbao, iaadstudio, fachada ventilada, SATE, eco, passive