Levantamiento Planimétrico Casa de Náufragos
mar. de 2016
---
Arquitecto: Iñigo Arias
Arq. Técnico: Felipe Arias
Localización: Paseo Marqués de Arriluze e Ibarra nº 1, Getxo (Bizkaia)
Promotor: Autoridad Portuaria de Bilbao (APB)
---
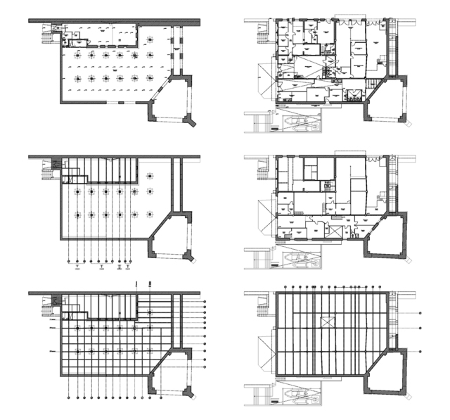
La respuesta lógica a la necesidad de disponer de la documentación planimétrica necesaria que permita inventariar el estado actual de los edificios en propiedad.

La complejidad de ser fiel a la realidad, honrando un bien cultural dentro del municipio de Getxo.

"La construcción de este edificio respondió a la alta siniestralidad del puerto de Bilbao a lo largo de la historia y a la imperiosa necesidad de contar con un espacio de mayores dimensiones que pudiera albergar otros programas. Conocida como la “Casa de Náufragos”, se trata de un brillante testimonio de la interpretación de un edificio dedicado a la asistencia altruista de la ciudadanía dotado con el simbolismo de un faro de estilo neo-vasco."
iñigo arias arquitecto, arquitecto getxo, arquitecto bilbao, iñigo arias, architect getxo, architect bilbao, iaadstudio, fachada ventilada, SATE, eco, passive